Метрика
Аренда офиса от собственника в Москве | Комвид

Аренда офиса от собственника в Москве

фильтр
Тип сделки
Округ объекта...
Цена
от
до
Назначение...
Площадь
от
м²
до
м²
Метро
    
Профсоюзная 94к2 (блок №2+№3)
360
м²
360
м²
600 000 руб./мес.
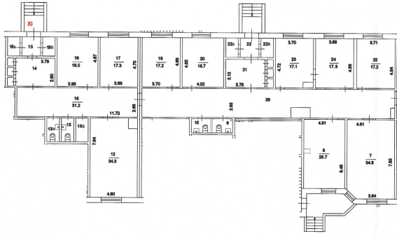
Собственник предлагает в аренду офис площадью 360 кв.м.
Офис расположен на первом этаже жилого дома в 10 минутах ходьбы от ст. м. Беляево и имеет 2 отдельных входа.
10 изолированных кабинетов, 4 санузла, серверная с оборудованием. Кондиционеры во всех кабинетах и серверных. Высота потолка 2,7 м., электрическая мощность 29 кВт.
Система СКС – компьютерная сеть, телефония, МГТС, интернет. Охранно-пожарная сигнализация, видеодомофоны, металлические рольставни на всех окнах.
В офисе выполнена отделка – подвесные потолки Армстронг; напольное покрытие: в кабинетах – линолеум, в коридоре и с/у – плитка; стены: обои под покраску, деревянные панели (отбойники) в кабинетах и коридоре; стеклопакеты, жалюзи; деревянные двери.
Бесплатная парковка. Удобный и быстрый выезд на ул. Профсоюзная.
При заключении договора аренды оплачивается первый месяц аренды (645 000 руб.), последний месяц аренды (645 000 руб.) и обеспечительный платеж (645 000 руб.).
Коммунальные и эксплуатационные расходы, услуги связи оплачиваются отдельно.
Стоимость аренды указана с учетом НДС 5%.
Прямая аренда. Собственник.
Аренда офиса - Москва, ул. Профсоюзная, 96 (блок №1)
сдано
Профсоюзная 96 (блок №1)
185
м²
185
м²
Аренда офиса - Москва, ул. Профсоюзная, 96 (блок №2)
сдано
Профсоюзная 96 (блок №2)
234
м²
234
м²
Аренда ПСН - Москва, ул. Профсоюзная, 96 (блок №3)
сдано
Профсоюзная 96 (блок №3)
132
м²
132
м²
Аренда офиса - Москва, ул. Профсоюзная, 94к2 (блок №1)
сдано
Профсоюзная 94к2 (блок №1)
254
м²
254
м²
Аренда офиса - Москва, ул. Профсоюзная, 94к2 (блок №2)
сдано
Профсоюзная 94к2 (блок №2)
232
м²
232
м²
Аренда офиса - Москва, ул. Профсоюзная, 94к2 (блок №3)
сдано
Профсоюзная 94к2 (блок №3)
127
м²
127
м²
Аренда офиса  - Москва, ул. Профсоюзная, 93к4
сдано
Профсоюзная 93к4
268
м²
268
м²
Аренда офиса - Москва, ул. Миклухо-Маклая, 31
сдано
Миклухо-Маклая 31
56
м²
56
м²

Снять офис в Москве от собственника

Хотите арендовать офис в Москве? Мы предлагаем прямую аренду офисов от собственника. У нас есть офисы в Юго-Западном административном округе (ЮЗАО) в пешей доступности от станции метро «Беляево» на улице Профсоюзная.

Преимущества аренды офиса у «КОМВИД»:

  • Прямая аренда от собственника;
  • Разнообразие офисных площадей и конфигураций;
  • Удобное расположение с отличной транспортной доступностью;
  • Отдельный вход и доступ 24/7;
  • Наличие систем: пожарной сигнализации, охранной сигнализации, СКУД, видеонаблюдения, кондиционирования, СКС (компьютерная сеть, телефония, интернет);
  • Наличие выделенных комнат под серверное оборудование и архив;
  • Отсутствие навязанных платежей за дополнительные услуги;
  • Свободный выбор интернет-провайдеров;
  • Рыночные ставки аренды.
Используя данный сайт, вы даете согласие на использование файлов cookie, помогающих нам сделать его удобнее. Подробнее
Принять и закрыть